
Residencial Chácaras do Alto da Nova Campinas
Sobrado de Alto Padrão em Construção
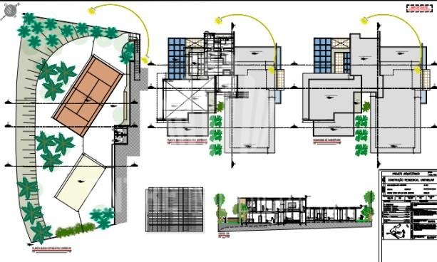
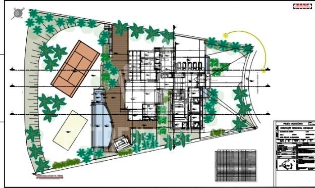
Esta é a oportunidade de adquirir uma das residências mais exclusivas de Campinas. Em um terreno de 5.185m², no renomado Condomínio Chácaras do Alto da Nova Campinas, este sobrado de alto padrão está em construção, com previsão de entrega para dezembro de 2026. Com 1.150,31m² de área construída, a casa foi projetada para proporcionar luxo, conforto e privacidade.
O pavimento térreo contará com 963,58m² distribuídos em garagem coberta para 5 carros, hall social (externo e interno), escritório, depósito, 4 suítes com closet, lavabo, cozinha, copa, despensa, área de serviço com lavanderia e banheiro, sala de jantar, sala de estar, adega, home theater, academia, vestiários masculino e feminino, área gourmet e varanda.
No pavimento superior, com 162,13m², encontra-se a suíte master, que conta com closet masculino e feminino, banheiros masculino e feminino, sala íntima e copa de apoio, além de um elevador para maior acessibilidade.
O quintal de 4.034,69m² foi projetado para ser um verdadeiro paraíso de lazer, com piscinas com prainha, SPA, quadra de tênis, quadra de areia e vestiários.
O imóvel será entregue com acabamento de alto padrão, incluindo diversos diferenciais de luxo. Durante a construção, há a possibilidade de personalização dos acabamentos, garantindo que cada detalhe seja de acordo com seu gosto e estilo.
Esta é a chance de viver em um dos locais mais desejados da cidade, em um imóvel que redefine o conceito de sofisticação e bem-estar.
Agende sua visita e acompanhe o progresso dessa obra extraordinária!
CRECI: 227340
CRECI: 283796