
Oportunidade única na Hípica Campinas.
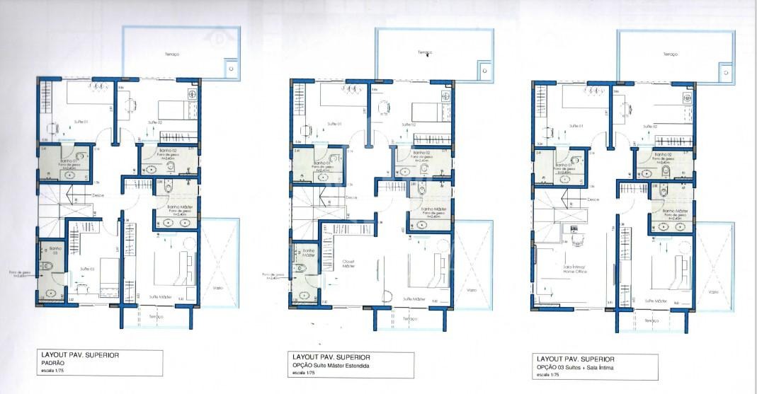
Trata-se da casa numero treze, com área construída de 191,33 m2 e terreno de 372,13 m2. Este éum terreno bem maior já que os terrenos do condomínio normalmente tem 257 a 263m2.
Está configurada como 4 suites mas com a possibilidade da suíte do casal bem maior com 2 banheiros. É aliás como está apresentada lá fisicamente mas podendo ser facilmente alterado para as 4 suítes originais. Devido ao tamanho extra do terreno o valor de venda da casa totalmente pronta é de R$ 2.200.000,00 com entrega do condomínio pronto para habitação prevista para 12 a 18 meses. O pagamento pode ser escalonado neste período ou R$ 1.600.000,00 a venda no estágio atual da construção faltando apenas acabamentos.
Não perca essa oportunidade de morar numa das melhores regiões de Campinas.
CRECI: 222015